















Tile-In / Step Aluminium Profile
Commercial Recessed Aluminium Profile
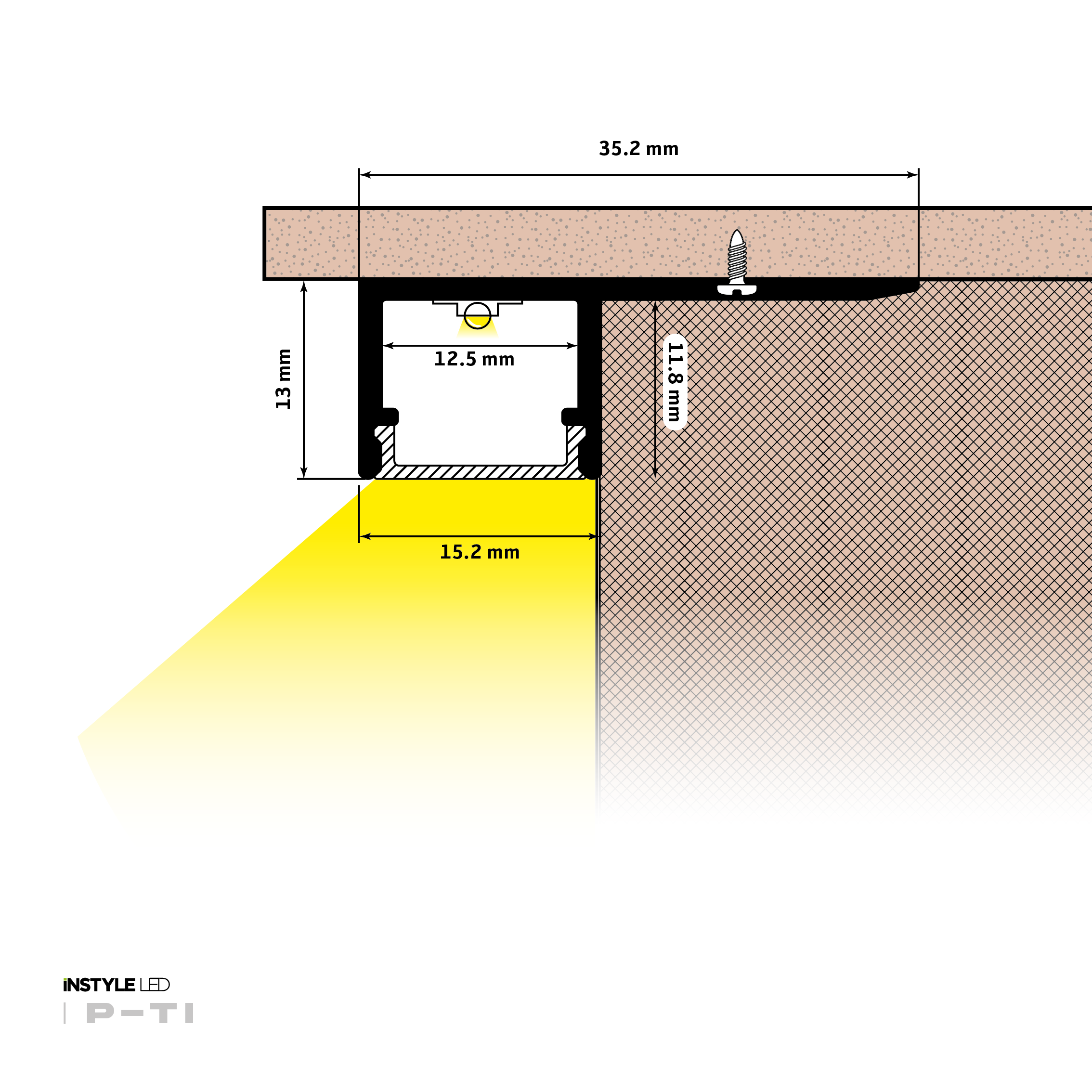
- IP: 20 (waterproof rating)
- Length: 1m / 2m
- Width: 15.2mm (35.2mm including flange)
- Depth: 13mm
- CE + RoHS Certificated: Yes
Product Description
The INSTYLE LED tile in / step aluminium profile is designed for installations that require sleek, integrated professional finishes. It features a semi-diffused opal lens, which effectively disperses the light from individual LED diodes, creating a smooth and continuous light-bar effect. Read more.
Features
- Commercial Grade
- Colour: Silver, White, Black
- Maximum LED strip width: 12.6mm
- Waterproof Rating: IP20
Why Use Aluminium Profiles?
Incorporating aluminium profile into your LED strip install offers multiple benefits:
- Enhanced Aesthetics: Profiles provide a polished and finished look, ideal for installations where the LED strips are in line of sight and are visible.
- Protection: They shield the LED strips from accidental contact damage, especially in high-traffic areas or accessible spaces.
- Moisture Resistance: While most of the aluminium profiles themselves are not waterproof, they can help reduce exposure to moisture. For additional water protection, consider using IP67-rated LED strips within the profiles, and/or our IP rated aluminium profile range.
- Longevity: Installing onto an aluminium profile will assist in dissipating the heat, resulting in a longer lifespan for your LED lighting.
Customisable Lengths
Our tile in / step aluminium profile is available in standard lengths of 1m or 2m, but they can be easily customised to your specific requirements. Simply cut the profile with straight or mitred cuts by using a hacksaw for a perfect fit.
Installation Options
Installing aluminium profiles are simple and versatile:
- Fixing Brackets: For added convenience, use our specially designed fixing brackets. These can be screwed or nailed into place, allowing the aluminium profile to clip securely onto them.
- Adhesive: Due to its light weight, you can Dot & Dab the profile directly to the surface with a grab adhesive (CT1 for example)
- Countersink Screws: Secure the profile directly to the surface with countersink screws.
Learn More
For further details and support on LED profiles and extrusions, visit our dedicated aluminium profiles and extrusions support page.
| P-TI |